Aribau

Portrait of Aribau
2016

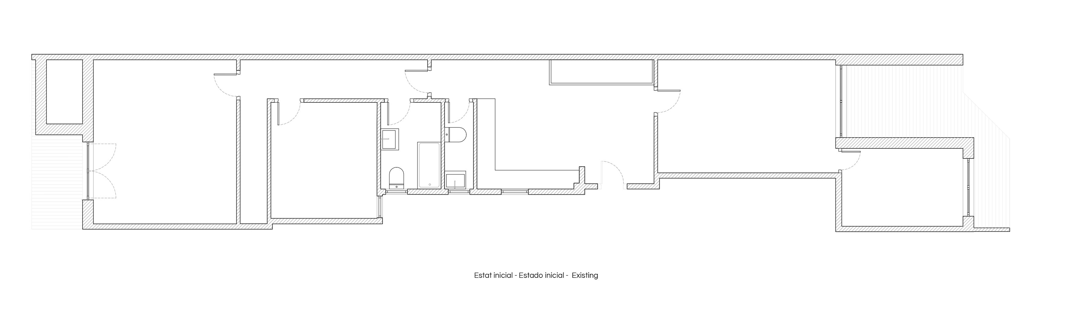
Apartment refurbishment in Barcelona

The dwelling is located on the attic floor of a building between party walls in the Eixample’s district of Barcelona, with a typical façade to façade configuration of long and narrow proportions. The main objective of the new layout is to ensure that all the main rooms are in contact with the façade and to allow light into the center of the floor.

Portrait of Aribau Portrait of Aribau

The change of finish on the ceiling is used as an element that organizes the main space on a functional level, identifying the access and defining the kitchen-dining room and living room space.

This element also contributes to visually enlarge the little width available, through the effect of repetition of elements provided by the crosswive wood panelling.

A large polycarbonate door at the end of the corridor resolves the back of the corridor and helps to explain, through the passage of light, the general layout.

Portrait of Aribau
Sheet
Private developer
Typology Refurbishment
GFA 100 m²
Developer Private
Contractor ECO15
Author Ada Sánchez Arcusa
← Back