REINA ELISENDA

Portrait of REINA ELISENDA
2022

APARTMENT REFURBISHMENT IN BARCELONA

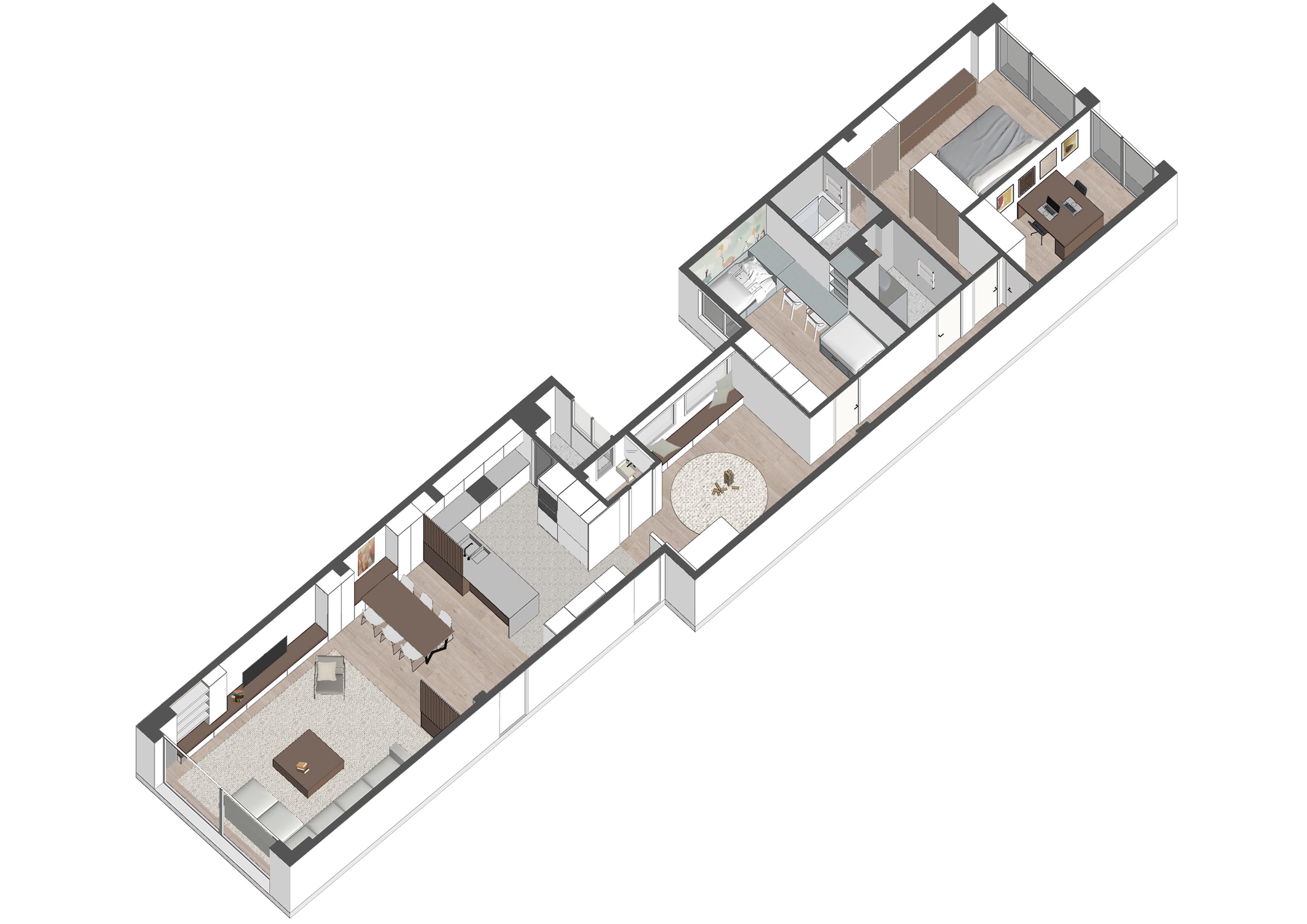
The project proposes a clear distribution where two areas are differentiated, one corresponding to the common uses and the other to the bedrooms.

The floor plan resolves the transition between the two areas through a central family space, where a flexible use is foreseen and optionally connected to the living-dining-kitchen area. This space favours a wide perception of the whole house, both visually and in terms of use, due to the depth it provides from the main space.

Portrait of REINA ELISENDA Portrait of REINA ELISENDA

The finishes of the project respond to a desire for domesticity and serenity. In the main space there are elements that function as a visual filter, in wood and contrasting colour, offering intimacy with respect to the direct access.

Portrait of REINA ELISENDA Portrait of REINA ELISENDA
Portrait of REINA ELISENDA Portrait of REINA ELISENDA
Sheet
Private developer
Typology Refurbishment
GFA 130 m²
Author Ada Sánchez Arcusa
+ Dinàmica Team Marta Gallart
Developer Private
← Back