SARA

Portrait of SARA
2022

Competition for a SARA (service of attention, recovery and reception) for people in situations of gender violence

2nd ranked

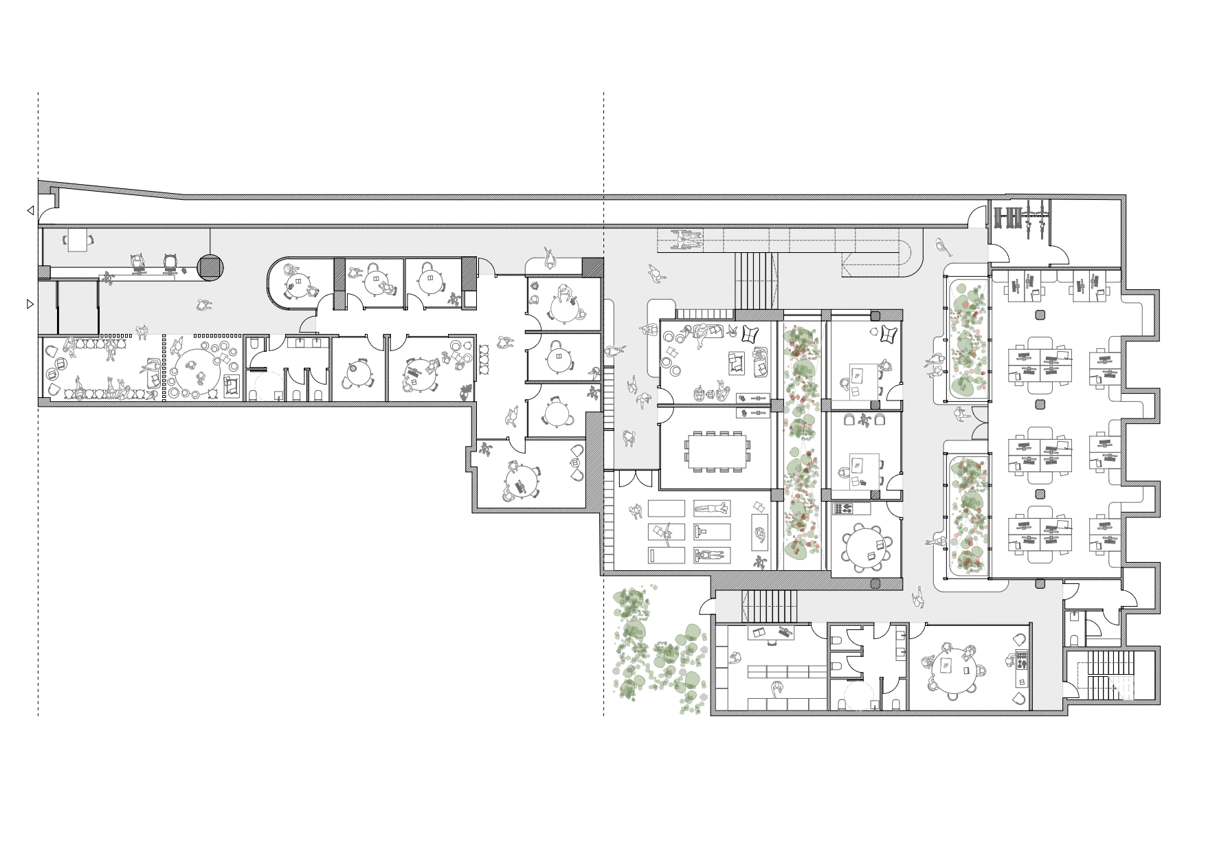
The programme envisaged for this SARA involved the creation of welcoming spaces, where the sensation of intimacy and security, even domesticity and serenity, would prevail.

To deal with the depth of the floor plan and the lack of natural light, a clear distribution scheme was defined, based on the opening of courtyards in the roof of the interior of the block. These courtyards allow access to natural light and ventilation to the rooms, which are intended to be semi-interior gardens. The circulation spaces also take advantage of these conditions, becoming meeting spaces.

To favour the perception of domesticity and warmth required, the proposal opts for soft shapes, textures and colours.

Portrait of SARA Portrait of SARA
Sheet
Competition
Typology Competition
Developer BIM/SA - Ajuntament de Barcelona
Partners LQA + Anna Fernández Abelló
← Back